綾瀬市小園南1期 新築戸建 全1棟
徒歩4分の場所に綾瀬市立早園小学校があります。多くの方から高いニーズのある、内装もピカピカの新築戸建ての物件です。前面道路6m以上という駐車もラクラクな物件となっております。当社はお客様が不動産購入で失敗しないよう、しっかりとサポート致します。経験豊富なスタッフが丁寧に不動産情報のご案内を致しますので、安心してお任せ下さい。
物件情報
周辺施設
綾瀬市小園南1期 新築戸建 全1棟 の物件概要
【新築一戸建】| 所在地 | 神奈川県綾瀬市小園南2丁目 | ||
|---|---|---|---|
| 交通 | |||
| 価格 | 5,399万円 | 築年月(築年数) | 2026年 2月 ( 予定 ) |
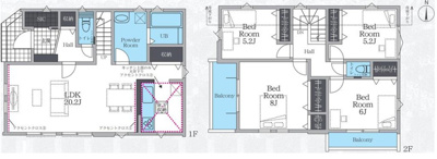
| 建物面積/坪数 | 109.30㎡/33.06坪 | 土地面積/坪数 | 160.26㎡/48.47坪 |
| 種別/構造 | 新築一戸建 / 木造 | 地目 | 宅地 |
| 備考 | 気になるイチオシ物件情報:「綾瀬市小園南1期 新築戸建 全1棟」。設備も充実している新築戸建ての物件はいかがでしょうか。安心の前面道路6m以上の条件を備えております。ご希望の条件に合った不動産情報をお求めなら、多種多様な不動産情報を取り扱う当社にご用命ください。当社はお客様のご希望に合った物件をご紹介するべく、誠心誠意を持って努めて参ります。 | ||
| 取扱会社 |
|
||
※地図上に表示される物件の位置は付近住所に所在することを表すものであり、実際の物件所在地とは異なる場合がございます。
綾瀬市小園南1期 新築戸建 全1棟の販売物件情報











